Italiano
70.000 €

MONOLOCALE ZONA CENTRO

Appartamento in vendita • Novara - Viale Baluardo Lamarmora , 16
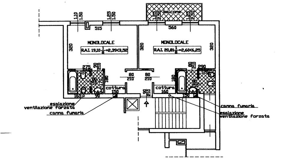
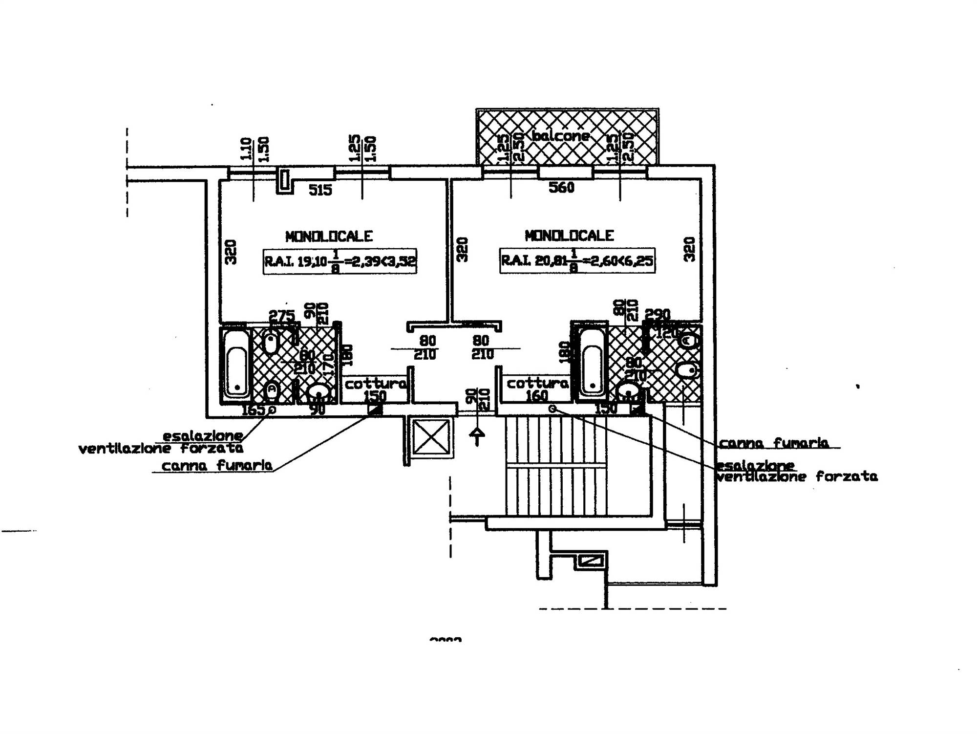
Proponiamo in vendita in zona centro n 2 monolocali ristrutturati, derivanti, tramite pratica edilizia dalla suddivisione di spazi interni di unico appartamento.
l, immobile è un classico monolocale con bagno , ed armadio a muro.
Posto al sesto piano con ascensore, in palazzo signorile. Appartamento ideale per studenti o trasfertisti sito in vicinanza stazione, tribunale, e facoltà universitarie .

La proposta contiene immagini render con arredamento.

Per info invia una richiesta e sarai contattato. Tale pubblicazione ha valore puramente descrittivo senza costituire elemento di contratto
Caratteristiche principali
Codice
VR958
Città
Novara
Categoria
Appartamento
Prezzo
70.000 €
Spese condominiali
750 € / anno
Locali
1
Camere
1
Bagni
1
Mq
40
Balconi
1
Piano
6
Classe energetica
E
210,14
Stato Immobile
Ristrutturato
Grado
Medio
Posizione
Centro
Panorama
Vista Monti
Orientamento
Sud Nord
Lati Liberi
2
Giardino
Cortile
Arredi
Non Arredato
Tipo Soggiorno
Soggiorno
Tipo Cucina
Angolo Cottura
Riscaldamento
Centralizzato
Tipo Riscaldam.
Termo valvole
Tipo Impianto
Radiatori
Fonte Energetica
Metano
Infissi
Alluminio Doppio Vetro
Serramenti
Buono
Persiana
Tapparella PVC
Pavim. Giorno
Laminato
Pavim. Notte
Laminato
Pavim. Cucina
Laminato
Pavim. Bagno
Ceramica

Accessori: Aria Condizionata, Ascensore, Cancello Elettrico, Doppi Vetri, Tapparelle Elettriche

Mappa
Viale Baluardo Lamarmora 16, Novara (NO)
Condividi su
Cookie preference