Italiano
33.000 €

TRE MONOLOCALI RISTRUTTURATI

Appartamento in vendita • Recetto
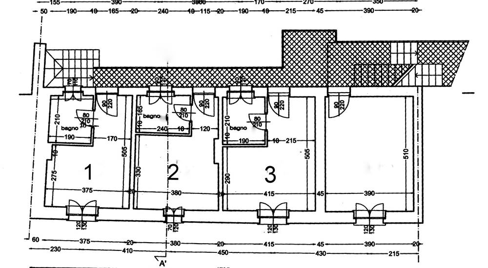
Proponiamo in vendita nel comune di Recetto tre monolocali al prezzo di EURO 33.000 CADAUNO recentemente ristrutturati.
Immobili ubicati in unico fabbricato.
Così composti: entrata con cucina a vista e stanza , bagno finestrato.
a concludere postI auto in cortile

Monolocali siti in posizione favorevole è ricercata ad uso affitti

Per info invia una richiesta e sarai contattato. Tale pubblicazione ha valore puramente descrittivo senza costituire elemento di contratto
Caratteristiche principali
Codice
VR954
Città
Recetto
Categoria
Appartamento
Prezzo
33.000 €
Locali
1
Camere
1
Mq
30
Posti auto
1
Piano
1
Classe energetica
In fase di valutazione
Stato Immobile
Buono
Grado
Medio
Panorama
Vista Giardino
Orientamento
Sud Nord
Lati Liberi
2
Giardino
Comune
Arredi
Arredato
Tipo Cucina
Angolo Cottura
Riscaldamento
Autonomo
Tipo Riscaldam.
Caldaia
Tipo Impianto
Pavimento
Acqua Calda
Autonoma
Raffrescamento
Split
Infissi
Legno Doppio Vetro
Serramenti
Nuovo
Persiana
Tapparella PVC
Pavim. Giorno
Ceramica
Pavim. Notte
Ceramica
Pavim. Cucina
Ceramica
Pavim. Bagno
Ceramica

Accessori: Aria Condizionata, Doppi Vetri, Passaggio Automobilistico, Passaggio Pedonale

Condividi su
Cookie preference